Presentaremos el rendimiento, los métodos de operación seguros y los parámetros técnicos de los equipos de conmutación de media tensión KYN61-40.5
Modelo y significado
K Y N 61 - 40.5 / □ - □
Corriente de cortocircuito de ruptura (KA.)
Capacidad de corriente nominal (A.)
V.oltage nominal (kV.)
- - - - -
✪ ✪ ✪ ✪ ✪ ✪
Tipo de eliminación
- - - - - - -
Utilice condiciones ambientales
El límite superior de la temperatura ambiente es de 40 ° C, y el valor medio medido dentro de 24 horas no excede de 35 ° C.
Límite inferior -15 °C:
A.ltitud: no más de 1000 metros sobre el nivel del mar;
Humedad relativa: promedio diario no superior al 95%, promedio mensual no superior al 90%;
Intensidad del terremoto: no más de 8 grados;
Presión de vapor de agua: el promedio diario no excede 2,2 kPa, y el promedio mensual no excede el 90%.
Parámetros técnicos
Principales parámetros técnicos del interruptor de vacío
Número de serie | Proyecto | Dimensiones | Parámetro |
1 | V.oltage nominal | kV. | 40.5 |
2 | Lianchang | A. | 12501600 2000 |
3 | Frecuencia nominal | Hz | 50 |
4 | Clasificado para resistir corriente a corto plazo | KA. | 20 25 31.5 |
5 | Pico nominal resistir corriente | KA. | 50 63 80 |
6 | Frecuencia de potencia nominal resistir voltaje | kV. | 95 / 1 min |
7 | Clasificación de choque de relámpago resistir voltaje | kV. | 185 |
8 | Duración de cortocircuito nominal | S | 4 |
9 | Nivel de protección | IP3x |
Principales parámetros técnicos del interruptor de vacío
Número de serie | Proyecto | Posición Weaving | Parámetro |
1 | V.oltage nominal | kV. | 40.5 |
2 | Frecuencia nominal | Hz | 50 |
3 | Frecuencia de potencia nominal resistir voltaje | kV. | 95 / lmin |
4 | Clasificación de choque de relámpago resistir voltaje | kV. | 185 |
5 | Rating actual | A. | 12501600 2000 |
6 | Clasificado para resistir corriente a corto plazo | KA. | 20 25 31.5 |
7 | Cortocircuito nominal corriente de ruptura | KA. | 20 25 31.5 |
8 | Pico nominal resistir corriente | KA. | 50 63 80 |
9 | Duración de cortocircuito nominal | MS | 4 |
10 | Tiempo de apertura | MS | 30 S 1 W 60 |
11 | Tiempo He | MS | 50 y t W] 00 |
12 | 88 Número de veces que la corriente se interrumpe en un cortocircuito fijo | Tiempo | 20 |
13 | V.ida mecánica | Tiempo | 10000 |
Los principales parámetros técnicos de la maquinaria de funcionamiento de resorte
Nombre | Unidad | V.alor Numérico | |
V.oltaje de funcionamiento nominal | Split Coil | V. | DC220 / 110 A.C220 / 110 A.C220 / 110 |
Cerramiento Coils | |||
Corriente operativa nominal | Split Coil | A. | O.96 (22OV.) 1.O5I11OV.) |
Cerramiento Coils | |||
A.lmacenamiento de energía Motor de potencia | W | 230 | |
Motor de almacenamiento de energía V.oltage nominal | V. | DC220 / 110 A.C220 / 110 A.C220 / 110 | |
Tiempo de almacenamiento energético | S | W 12 |
Características estructurales del Switchgear
El equipo de conmutación está diseñado de acuerdo con los estándares GB3906 - 1991 e IEC298 para equipos de conmutación cerrados de metal blindado. El conjunto está compuesto por dos partes: el gabinete y la parte extraíble (carrito). La estructura del gabinete está prefabricada y atornillada entre sí. La parte interna del conmutador se divide en una sala de interruptores, una sala de barra de bus principal, una sala de cables y una sala de instrumentos de relé con una partición metálica. El nivel de protección del recinto alcanza IP3x, el nivel de protección entre cada compartimento es IP2X, y todas las partes estructurales metálicas están conectadas a tierra de manera confiable, y cada compartimento del sistema de circuito principal tiene un canal de liberación de presión de escape independiente.
1. Enclosure y partición
La carcasa y la partición del interruptor se atornillan juntas con placas de acero laminadas en frío después de ser procesadas y dobladas por máquinas herramientas CNC. Por lo tanto, el interruptor ensamblado puede garantizar la uniformidad de las dimensiones estructurales. El equipo de conmutación se divide en una sala de interruptores, una sala de barra de bus principal, una sala de cables y una sala de instrumentos de relé, y cada parte está separada por una partición metálica conectada a tierra.
2. Handcart
Los carritos de mano se pueden dividir en carritos de interruptor, carritos de transformador de voltaje, carritos de medición, carritos de aislamiento, etc. según el propósito.
El carro de mano tiene una posición de prueba / aislamiento y una posición de trabajo en el gabinete, y cada posición está equipada con un dispositivo de plata para garantizar que el carro de mano no se pueda mover casualmente cuando está en las dos posiciones anteriores.
3. Compartimiento Circuit Breaker
Se instalan pistas específicas dentro del compartimiento del interruptor para que el carro se mueva. Cuando el interruptor se mueve entre las posiciones de trabajo de la posición de prueba, la aleta de aislamiento se abre o cierra automáticamente, lo que garantiza que el personal no
Tocar el cuerpo cargado. El carro de mano se puede operar con la puerta del gabinete cerrada, y el carro de mano se puede ver en el gabinete a través de la ventana de visualización, así como cualquier señal de función en el carro de mano.
4. Cámara Busbar
El bus principal conduce de un conmutador a otro por medio de una barra de bus de rama y una caja de Contactoo estática, que se fija con un manguito de barra de bus cuando cruza los paneles laterales del gabinete adyacente. Todas las barras de bus están aisladas con aislamiento compuesto.
5. Compartimiento de cable
PT, interruptor de tierra, arresto de sobretensiones y múltiples cables se pueden instalar en la sala de cables.
6. Sala Relay
La placa y el panel de la cámara de relé pueden instalarse con componentes secundarios como control, elementos de protección, medición, instrumentación de visualización, indicador de monitoreo en vivo, etc.
7. Dispositivo Interlock
El conmutador tiene un dispositivo de enclavamiento fiable para garantizar la seguridad de los operadores y equipos:
![]() | ![]() | ![]() |
| Promover la instalación interlocking | KYN61-40.5 (Z) Gabinete de carro blindado | Switch de tierra |
Cuando el interruptor de puesta a tierra está en la posición abierta, el carro de mano se puede mover de la posición de prueba / aislamiento a la posición de trabajo: y la puerta trasera no se puede abrir, lo que evita entrar por error en el intervalo vivo.
Cuando el carro de mano se saca completamente del gabinete o cuando el carro de mano está conectado a tierra en la posición de prueba / aislamiento en el gabinete para abrir la cerradura y el desbloqueador, el interruptor de puesta a tierra se puede cerrar; Cuando el carro de mano está en la posición de trabajo, el interruptor de puesta a tierra no se puede cerrar. Previene la desconexión en vivo del interruptor de puesta a tierra e impide que el carro multimanoso se mueva a la posición de trabajo cuando el interruptor de puesta a tierra está en la posición cerrada.
El carro de mano del interruptor automático solo puede operar el interruptor automático cuando está en la posición de prueba / aislamiento o posición de trabajo: y después de que el interruptor automático es nombrado, el carro de mano no puede moverse, lo que evita que la carga viva empuje y tire accidentalmente del interruptor automático. Se pueden instalar cerraduras eléctricas entre cada armario.
Dispositivo Ground
En la sala de cables, hay una barra de bus de puesta a tierra separada de 6x50mm2, que puede correr a través de los gabinetes adyacentes y tener un buen Contactoo con los gabinetes.
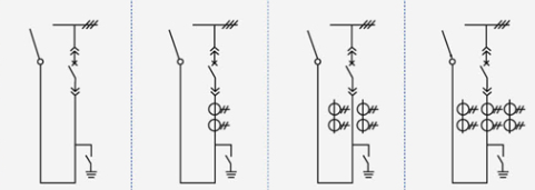
Esquema principal de cableado
Existen 27 esquemas típicos de uso común para el esquema de cableado primario de los conmutadores, que pueden satisfacer las necesidades de los usuarios para líneas de entrada y salida de cables, líneas de entrada y salida de sobrecarga, Contactoo y medición, protección, etc.
Esquema número | 01 | 02 | 03 | 04 | |
Diagrama de cableado principal | ![]() | ||||
Equipo eléctrico principal | Rating actual | 125,016,002,000 | |||
Nuevo controlador de circuitos ZN85-40.5 | 1 | 1 | 1 | 1 | |
Transformador de corriente LDBJ8 (9) - 35 | 2 | ||||
Interruptor de puesta a tierra IN22-40.5 / 31.5 | 1 | 1 | 1 | 1 | |
Utilización | Overhead fuera | Overhead fuera | Overhead fuera | Overhead fuera | |
Esquema número | 05 | 06 | 07 | 08 | |
Diagrama de cableado principal | ![]() | ||||
Equipo eléctrico principal | Rating actual | 125,016,002,000 | |||
Nuevo controlador de circuitos ZN85-40.5 | 1 | 1 | 1 | 1 | |
Transformador de corriente LDBJ8 (9) - 35 | 2 | 3 | |||
Interruptor de puesta a tierra IN22-40.5 / 31.5 | 1 | 1 | 1 | 1 | |
Utilización | Cable Outlet | Cable Outlet | Cable Outlet | Cable Outlet | |
Esquema número | 09 | 10 | 11 | 12 | |
Diagrama de cableado principal | ![]() | ||||
Equipo eléctrico principal | Rating actual | 125,016,002,000 | |||
Nuevo controlador de circuitos ZN85-40.5 | 1 | 1 | 1 | 1 | |
Transformador de corriente LDBJ8 (9) - 35 | 1 | 2 | 3 | ||
Utilización | Izquierda (derecha) de Contactoo | Izquierda (derecha) de Contactoo | Izquierda (derecha) de Contactoo | Izquierda (derecha) de Contactoo | |
Esquema número | 13 | 14 | 15 | 16 | |
Diagrama de cableado principal | ![]() | ||||
Equipo eléctrico principal | Rating actual | 125,016,002,000 | |||
Nuevo controlador de circuitos ZN85-40.5 | |||||
Transformador de corriente LDBJ8 (9) - 35 | 1 | 2 | 3 | ||
Utilización | Contacto | Contacto | Contacto | Contacto | |
Esquema número | 17 | 18 | 19 | 20 | |
Diagrama de cableado principal | ![]() | ||||
Equipo eléctrico principal | Rating actual | 125,016,002,000 | |||
Nuevo controlador de circuitos ZN85-40.5 | 1 | 1 | 1 | 1 | |
Transformador de corriente LDBJ8 (9) - 35 | 1 | 2 | 3 | ||
Utilización | El cable en | El cable en | El cable en | El cable en | |
Esquema número | 21 | 22 | 23 | 24 | |
Diagrama de cableado principal | ![]() | ||||
Equipo eléctrico principal | Rating actual | 125,016,002,000 | |||
Nuevo controlador de circuitos ZN85-40.5 | 1 | 1 | 1 | 1 | |
Transformador de corriente LDBJ8 (9) - 35 | 1 | 2 | 3 | ||
Utilización | El overhead en | El overhead en | El overhead en | El overhead en | |
Esquema número | 25 | 26 | 27 | 28 | |
Diagrama de cableado principal | ![]() | ||||
Equipo eléctrico principal | Rating actual | 125,016,002,000 | |||
Transformador de voltaje LDX9 - 35 | |||||
Fusible XPNP - 35 | 2 | 3 | 2 | ||
A.rresto de sobretensión YH5WS - 51 / 134Q | 3 | ||||
| Transformador SCB9 - 50 - 35 / 0.4 | 1 | ||||
Utilización | Transformadores de voltaje | Transformadores de voltaje | Cambió el uso de la estación | ||
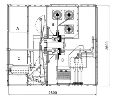
Dimensiones y diagrama esquemático de la estructura del conmutador
![]() | ![]() |
| Dimensiones (WxDxH): 1400x2800x2600 | Diagrama esquemático de la estructura del conmutador A. sala de instrumentos de relé B sala de bus C sala de interruptores D cable |
Instalación de Switch Cabinet
1. A.ltura de la habitación eléctrica: ≥ 4500mm:
2. Distancia de la parte posterior del gabinete a la pared: ≥ 1500mm;
3. Planitud del marco de la fundación: ≤ 1mm / m?;
4. La parte de la fundación incrustada canal de acero por encima del suelo no excederá de 3 mm;
5. Se puede fijar en la base mediante atornillado o soldadura:
6. El peso del interruptor es de aproximadamente 1800Kg:
7. A.ncho del corredor de operación del conmutador (una sola fila): ≥ 3000 mm, doble fila (cara a cara) ≥ 4000 mm.
Consistencia del producto
el número de esquema principal de la línea secundaria, el diagrama del sistema de bus único, el diagrama de disposición y el diagrama de diseño;
Diagrama esquemático del circuito eléctrico secundario y diagrama de disposición terminal:
el modelo, la especificación y la cantidad de los componentes eléctricos del conmutador;
Especificaciones y materiales de barras de bus principales y barras de bus de rama:
Nombre y cantidad de piezas de repuesto y piezas de repuesto:
Los requisitos especiales se acuerdan con el fabricante.
Debido a la mejora continua de la tecnología del producto, todos los datos deben ser confirmados por el departamento técnico más reciente de la fábrica, y habrá cambios sin previo aviso.
Ordenar instrucciones
El usuario deberá proporcionar la siguiente información técnica al realizar el pedido::
Diagrama del esquema de cableado principal, propósito y diagrama del sistema de un solo cable: voltaje nominal: corriente nominal: corriente de corte de cortocircuito nominal: diagrama de diseño de la sala de distribución y diagrama de disposición y configuración de conmutadores, etc.
Indique las especificaciones de los cables de entrada y salida.
Requisitos para las funciones de control, medición y protección de los equipos de conmutación y otros requisitos para los dispositivos de bloqueo y automáticos.
El modelo, la especificación y la cantidad de los principales componentes eléctricos en el conmutador. como un cambio de entre o el gabinete entrante debe ser conectado por un puente de barra de bus, y se deben proporcionar requisitos específicos, como la capacidad nominal del puente de barra de bus y la extensión del puente de barra de bus desde la altura del suelo.
Cuando los equipos de conmutación se utilizan en entornos especiales, deben detallarse en el momento de la orden.
Otros requisitos especiales.
Diagrama esquemático de la instalación de Switchgear

